画像をクリックすると拡大表示されます
- 物件名称
- 【賃貸住宅】川尻新川町賃貸住宅
- 所在地
- 秋田市川尻新川町
- 家賃
- 78,000円/月
- 管理費
- 3,000円/月
- 敷金
- 1ヶ月
- 仲介手数料
- 85,800円
- 火災保険料
- 2年 20,000円
- 築年数
- 平成15年8月(築22年)
- 構造・工法
- 木造
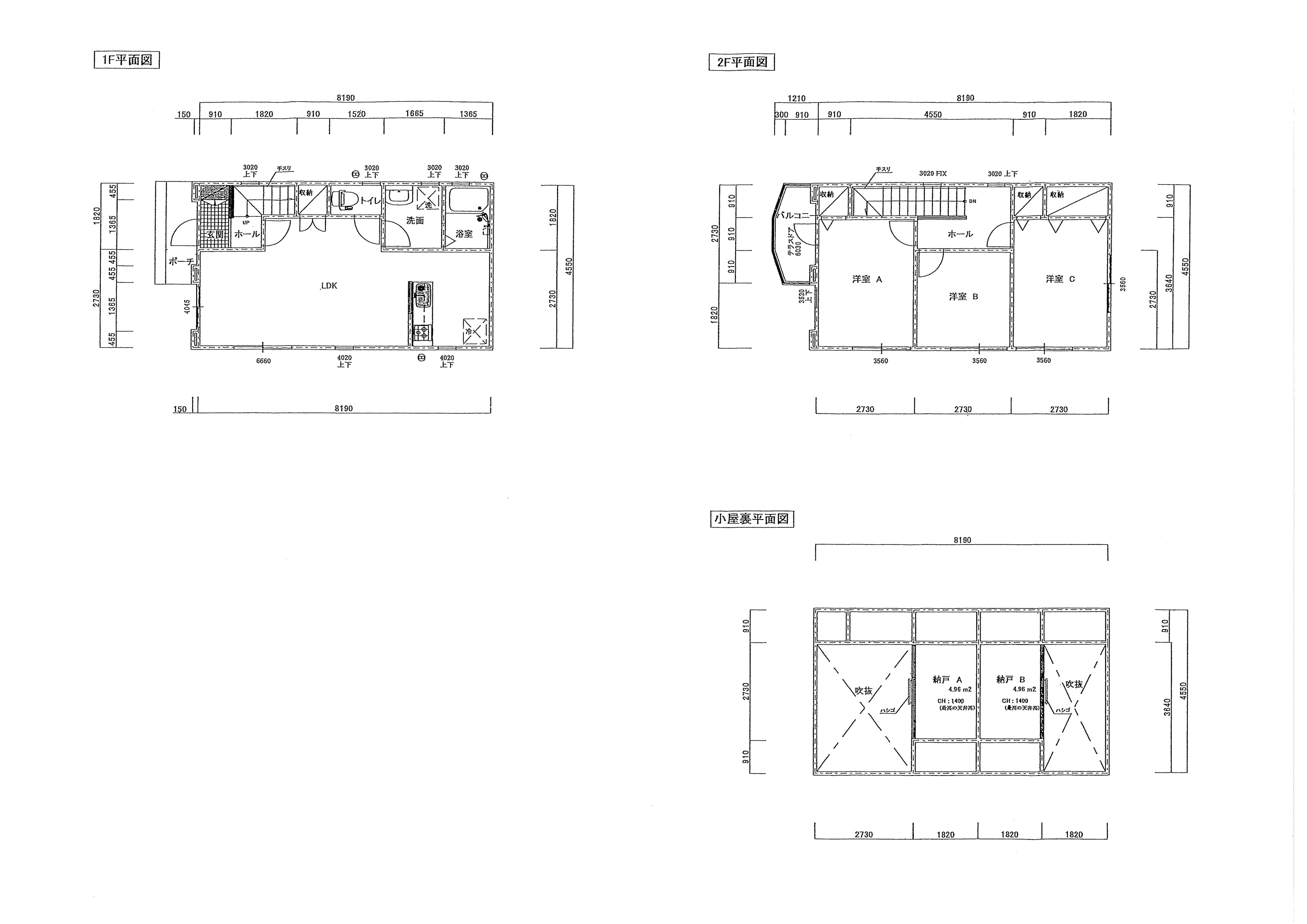
- 建物面積
- 74.52㎡(22坪)
- 間取り
- 3LDK(洋6・6・4.5・LDK15)
- 設備
- バストイレ別、シャワー付洗面化粧台、システムキッチン、クローゼット、照明器具、省エネ給湯器、プロパンガス、フローリング、FF暖房、エアコン、ダブルロックドア、モニタ付インターホン、バルコニー
- 駐車場
- 有(2台無料)
- 学区
- 川尻小学校・山王中学校
- 交通
- 羽後牛島駅 徒歩33分
- 取引態様
- 仲介
- 備考
- 令和8年1月中旬~入居可
賃貸保証:加入要(保証料は契約時に賃料の80%)
form
物件情報のお問い合わせフォーム
物件情報のお問い合わせフォーム










